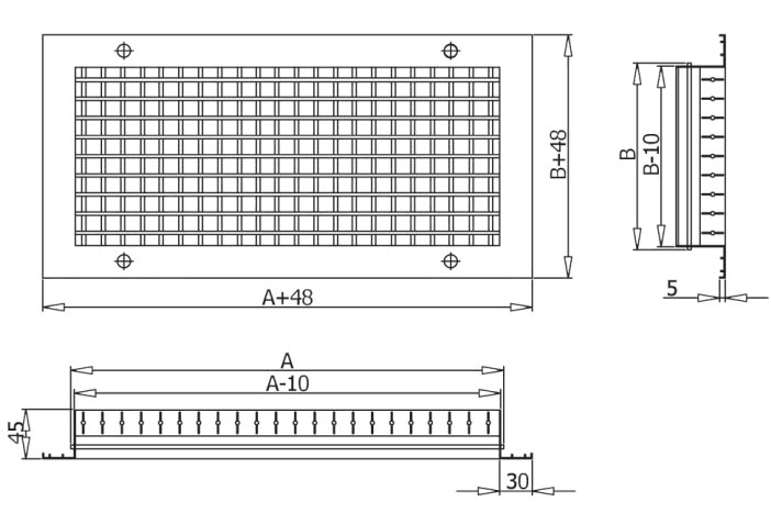
Решетка используются для подачи и удаления воздуха в приточно-вытяжной вентиляции, предназначены для монтажа в воздуховоды или строительные проёмы помещений различных назначений.
Двурядные решетки изготовлены из алюминиевого профиля  и снабжены индивидуально регулируемыми горизонтально-вертикальными жалюзи для изменения направления и (или) характеристик приточной струи (с помощью изменения угла наклона жалюзи решёток). Окрашиваются порошковой полиэфирной краской. Стандартный цвет — белый RAL9016. Также возможно окрашивание в любой цвет согласно каталогу RAL.
Решетки изготавливаются как стандартных типоразмеров, так и по заказу. Минимальный размер решетки 100×100 мм.
Решетки монтируются или с помощью винтового соединения (монтажные отверстия расположены на лицевой стороне рамки), или на защелках.
Могут комплектоваться адаптером для бокового или осевого присоединения к воздуховоду круглого и прямоугольного сечения, или же клапаном расхода воздуха КР.

Фильтр по заголовку     Количество строк:  
Заголовок материала Автор Хиты
 

Кто на сайте

Сейчас 38 гостей онлайн

Авторизация