|

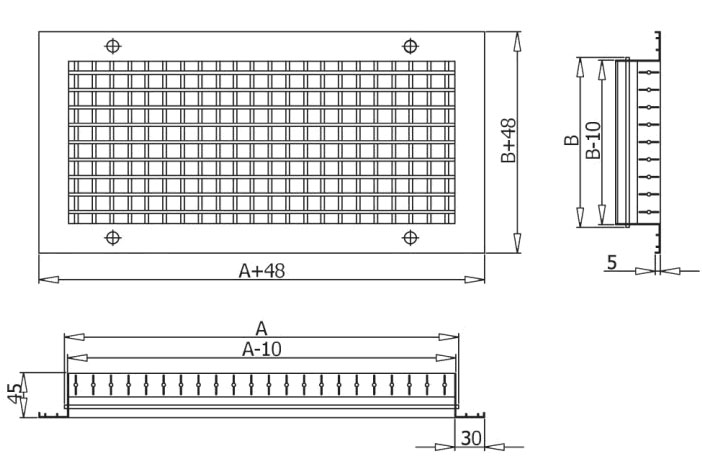
Наружные решетки используются для подачи и удаления воздуха в приточно-вытяжной вентиляции, предназначены для монтажа в воздуховоды или строительные проёмы помещений различных назначений. Решетки представляют собой прямоугольную раму с установленными в нее неподвижными жалюзи, которые препятствуют проникновению атмосферных осадков с улицы. Решетки изготавливаются из алюминиевого профиля и окрашиваются порошковой полиэфирной краской. Стандартный цвет — белый RAL9016. Также возможно окрашивание в любой цвет согласно каталогу RAL. Решетки монтируются с помощью винтового соединения (монтажные отверстия расположены на лицевой стороне рамки), что обеспечивает простоту и надежность монтажа. Решетки изготавливаются как стандартных типоразмеров, так и по заказу. Могут комплектоваться адаптером для бокового или осевого присоединения к воздуховоду круглого и прямоугольного сечения.
 |